No encontrado fichero de configuración para la empresa 4-0
--
No encontrado fichero de configuración para la empresa 4-0
--
No encontrado fichero de configuración para la empresa 4-0
-- For Sale Plot - Candelaria, Tías, Las Palmas, Lanzarote [602686]
Cargando...
Canary Islands For Sale
BUY/FOR SALE RENTAL HOLIDAY RENTAL
Language
Español Deutsch Français Italiano Dansk Nederlands Português Čeština русский 中國的


Candelaria, Tías, Las Palmas, Lanzarote

Plot for sale
Plot for sale in Candelaria, Tías, Lanzarote.
<
>
Print sign
121.080€

Urban plot in La Candelaria – Tías, Lanzarote

Urban plot in La Candelaria – Tías, Lanzarote
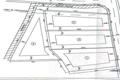
Magnificent 1,009 m² urban plot located in La Candelaria, one of the most pleasant and peaceful areas of the municipality of Tías, on the beautiful island of Lanzarote. Designated as PLOT NUMBER 1 on the subdivision plan.
The regulations allow for the construction of up to two stories with a maximum height of 7 meters, a ground floor coverage of 20%, and up to 50% on the upper floor, offering a perfect balance between spaciousness, privacy, and design.
A well-maintained residential area, surrounded by nature and offering an excellent quality of life, ideal for building an exclusive home in a privileged location on the island.
Sale subject to reservation and specific conditions; please call for more information.

Reference:
602686
Size:
1.009m²
Buildability:
20% (201.8m²)
Developable:
Yes

Photos

location

Contact us

Information on property

Please, complete the information in this form to send your request

For

Subject

Message

Name

Phone number

Email

Reference



Security code



Inmobiliaria Asecasa Canarias
https://www.asecasacanarias.com/
Tfn (+34)928.805.314 (+34)630683696
Facebook


Professionals


How to advertise
Real estate agencies
Contact us
RSS

©2017 Canary Islands For Sale
Artek Soluciones Informáticas.
C. Doña Micaela Hernández, 1. Oficina 2.
Las Palmas. Canary Islands.

Privacy policy